Engenheiro Arnaldo Oliveira

Engenheiro Arnaldo Oliveira

Engenheiro Arnaldo Oliveira

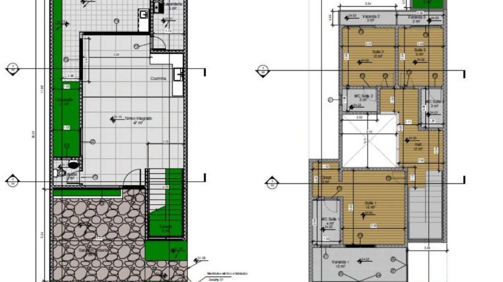
Projeto arquitetônico
Residencia unifamiliar

Resumo técnico:
Área construida: 216m²
2 Pavimentos
Localização: Monterrey - Monte Mor
Softwares utilizado: Autodesk Revit
Ano: 2023

Descrição do serviço:

Projeto completo desenvolvido para obra própria, contemplando:

Elaboração dos projetos executivos de arquitetura, com foco em funcionalidade e aproveitamento do terreno em declive;

Compatibilização com os projetos estruturais e de instalações;

Aprovação municipal junto à prefeitura de Monte Mor, atendendo às exigências do código de obras local;

Emissão dos documentos técnicos e memoriais para financiamento habitacional pela Caixa Econômica Federal;

Planejamento de obra com previsão de fases construtivas e otimização de orçamento.

O projeto buscou aliar conforto e economia de execução, com soluções práticas para ventilação cruzada, iluminação natural e estrutura racionalizada.

Renderização - Sobrado - Monte Mor

Descrição do serviço:

Este serviço envolveu a modelagem 3D e renderização de um sobrado com dois pavimentos, projetado para uma residência de alto padrão. A proposta buscou representar com fidelidade:


Software utilizado: Twinmotion
  • Volumetria e elementos arquitetônicos principais

  • Texturas e acabamentos realistas

  • Ambientes internos com iluminação natural simulada

  • Fachada frontal e posterior com paisagismo conceitual

As imagens foram utilizadas tanto para aprovação junto ao cliente quanto como base de estudos para detalhamento de esquadrias, materiais e composição de fachada.

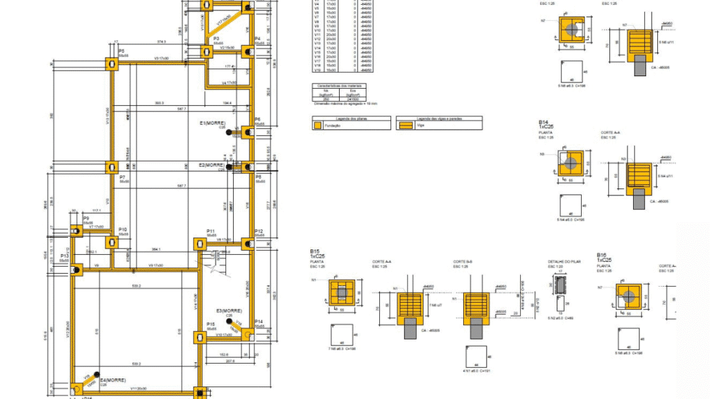
Projeto Estrutural - Sobrado - Monte Mor

Resumo técnico:

Fundações
: O sistema de fundações foi composto por blocos de coroamento sobre estacas escavadas, com profundidade média de 8 metros.
A solução foi definida a partir do estudo de sondagem do solo, garantindo estabilidade e segurança para a edificação.

Superestrutura: A estrutura foi desenvolvida integralmente em concreto armado, atendendo às necessidades funcionais e arquitetônicas do projeto.

Softwares utilizados:
Para o dimensionamento e detalhamento das estruturas, utilizamos o AltoQi Eberick.

Descrição do serviço: Este projeto contempla o dimensionamento estrutural completo de um sobrado residencial, adotando inicialmente a solução em concreto armado para todos os elementos da edificação. Após a primeira versão, o projeto passou por revisões em função de alterações arquitetônicas, como a substituição da escada original em concreto por uma escada metálica com degraus em madeira, buscando leveza visual e maior aproveitamento do espaço interno. Além disso, o pergolado que originalmente seria em concreto armado também foi reformulado para uma solução metálica, compatibilizada com os novos elementos arquitetônicos. Todas as modificações foram analisadas tecnicamente para manter a segurança e funcionalidade da estrutura.

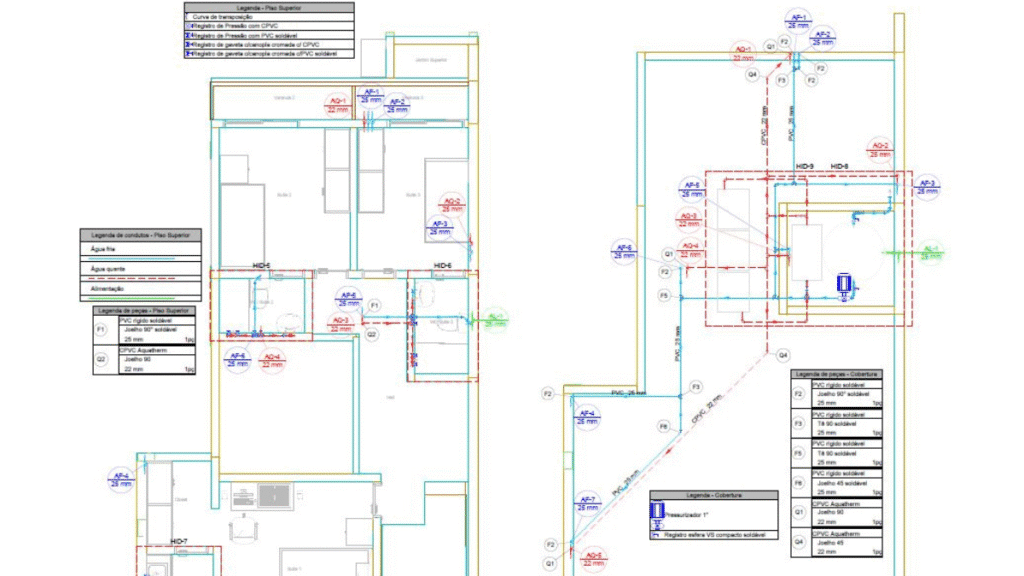
Projeto Instalações Hidráulicas - Sobrado - Monte Mor

Resumo técnico:

Água fria:
Rede embutida em PVC, abastecida por caixa d’água superior, dimensionada conforme o consumo da residência.

Água quente:
Sistema de aquecimento solar com placas na cobertura e boiler de acumulação. Distribuição feita em tubulação PPR, atendendo banheiros e cozinha.

Esgoto sanitário:
Rede ventilada, com declividades adequadas e ligação à rede pública, conforme exigências da concessionária.

Águas pluviais:
Captação realizada por grelhas na laje de cobertura, com condução por condutores verticais até o sistema de drenagem no terreno.

Reservatório:
Caixa d’água superior dimensionada para consumo diário da residência, com possibilidade de adaptações futuras.

Software utilizado:
Projeto desenvolvido com o QiBuilder (AltoQi).

Descrição do serviço:
Projeto completo das instalações hidráulicas da residência, contemplando os sistemas de água fria, água quente, esgoto sanitário, águas pluviais e reservação superior.
O sistema de aquecimento solar foi integrado desde o início, com definição dos equipamentos e rotas hidráulicas compatibilizadas com os demais projetos.
Todas as soluções foram desenvolvidas conforme as normas técnicas, buscando funcionalidade, eficiência e facilidade de manutenção, além de prever flexibilidades para futuras ampliações ou adaptações do sistema.

Projeto Instalações Elétricas - Sobrado - Monte Mor

Resumo técnico:

Padrão de entrada:
Projeto desenvolvido conforme as exigências da CPFL, com definição do ponto de entrega, eletrodutos de entrada, aterramento e quadro de medição instalado em caixa padrão da concessionária.

Distribuição interna:
Rede embutida, organizada por circuitos independentes para iluminação, tomadas e cargas específicas (chuveiros, forno, ar-condicionado, etc.). Quadro de distribuição dimensionado com reserva para futuras ampliações.

Tomadas e iluminação:
Posicionamento dos pontos conforme o layout arquitetônico, atendendo às normas técnicas e buscando praticidade no uso cotidiano. Inclui pontos internos e externos, com atenção às áreas molhadas.

Aterramento e proteção:
Sistema de aterramento projetado segundo a NBR 5410, com dispositivos de proteção contra choques elétricos e sobrecargas. Instalação de disjuntores DR nos circuitos de maior risco (banheiros, lavanderia e áreas externas).

Infraestrutura complementar:
Previsão de tubulação para interfone, campainha, roteadores e pontos de TV e internet.

Software utilizado:
Projeto elaborado com o QiBuilder (AltoQi).

Descrição do serviço:
O projeto elétrico contempla todas as instalações da residência, desde o padrão de entrada exigido pela CPFL até a distribuição interna dos circuitos.
Foram considerados critérios de segurança, eficiência energética e flexibilidade para possíveis ampliações. O layout dos pontos foi definido de forma estratégica, alinhado ao projeto arquitetônico e às necessidades práticas dos moradores.
Também foi prevista a infraestrutura para redes de comunicação e dados, oferecendo suporte à conectividade da residência, tudo em conformidade com a NBR 5410 e demais normas aplicáveis.

Engenheiro Arnaldo Oliveira

Arquitetura

Projetos de Prefeitura

Projeto Executivo

Renderizações

Compatibilização

Estruturas

Concreto Armado

Estruturas Metálicas

Alvenaria Estrutural

Reforço Estrutural

Contenções

Muros de arrimo e gabião

Subsolos

Cortinas Atirantada

Terraplanagem

Instalações

Instalações Hidrossanitárias

Instalações Elétricas

Drenagem Pluvial

SPDA

Gestão de Obras

Gerenciamento de Obras

Levantamento Quantitativos

Orçamento de obras

Financiamento Caixa Econômica

Rua Canadá, 198 - Jardim das Nações - Guarulhos - SP

Contatos: (11)91908-1112 e (19)99335-7505 contato@arnaldooliveira.eng.br

Rua Canadá, 198
Jardim das nações
Guarulhos - SP

Contatos:
(11)91908-1112
(19)99335-7505
contato@arnaldooliveira.eng.br