Engenheiro Arnaldo Oliveira

Engenheiro Arnaldo Oliveira

Engenheiro Arnaldo Oliveira

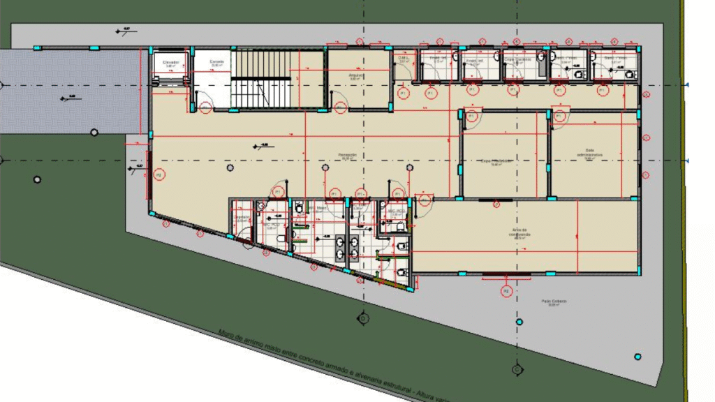
Projeto arquitetônico
Centro Especializado em Reabilitação

Resumo técnico:

Área construida: 1100m²
Pavimentos: 3
Localização: Francisco Morato - SP
Ano: 2024


Descrição do serviço:

O projeto consistiu na elaboração do projeto executivo completo de um Centro Especializado em Reabilitação – tipo II, a partir de um projeto legal previamente definido em licitação pública.

Foram desenvolvidos todos os detalhamentos técnicos necessários à execução da obra, incluindo especificações de materiais e acabamentos, dimensionamentos finais, compatibilização entre arquitetura, estrutura e instalações, além de ajustes pontuais exigidos pelas condições do terreno e pelo processo construtivo.

A proposta mantém o padrão arquitetônico previsto no modelo original, com ambientes destinados a atendimentos clínicos, terapias, apoio técnico e administrativo, além de áreas de recepção e espera, respeitando os requisitos normativos e funcionais do programa público de saúde.

O projeto executivo também contempla soluções voltadas à acessibilidade, segurança, conforto térmico e durabilidade dos materiais, visando garantir qualidade e funcionalidade na etapa de obra.

Engenheiro Arnaldo Oliveira

Arquitetura

Projetos de Prefeitura

Projeto Executivo

Renderizações

Compatibilização

Estruturas

Concreto Armado

Estruturas Metálicas

Alvenaria Estrutural

Reforço Estrutural

Contenções

Muros de arrimo e gabião

Subsolos

Cortinas Atirantada

Terraplanagem

Instalações

Instalações Hidrossanitárias

Instalações Elétricas

Drenagem Pluvial

SPDA

Gestão de Obras

Gerenciamento de Obras

Levantamento Quantitativos

Orçamento de obras

Financiamento Caixa Econômica

Rua Canadá, 198 - Jardim das Nações - Guarulhos - SP

Contatos: (11)91908-1112 e (19)99335-7505 contato@arnaldooliveira.eng.br

Rua Canadá, 198
Jardim das nações
Guarulhos - SP

Contatos:
(11)91908-1112
(19)99335-7505
contato@arnaldooliveira.eng.br